
一、产品二片式内螺纹球阀的详细资料
Q11F型二片式内螺纹球阀系列产品采用铸造二片体式阀体,这种两片式球阀左右阀体采用内螺纹连接,侧装球体的结构设计。重量轻、结构简单,安装方便,这种螺纹球阀适用于PN1.0~4.0MPa工作温度-29℃~180℃(密封圈为聚四氟乙烯)或-29℃~300℃(密封圈为对位聚苯)的各种管道上,用于切断或接通管路中的介质。
【执行标准】
设计规范:API 6D GB/T 1224
螺纹连接:GB/T 7073 ASME B1.20.1 DIN 2999 ISO7/1
试验与检验:GB/T 13927 API 598 API 6D
【性能参数】
|
基本型号 |
Q11F |
|
工作压力(MPa) |
1.6~6.3 / Calss150-Calss400 /1000WOG |
|
口径(mm) |
DN15-DN100 1/2″-4″ |
|
适用介质 |
水、油、气、醋酸类、硝酸类等其他介质 |
|
材料阀体 |
WCB CF8 CF8M 镍合金 Monel Duplex Steel |
|
球体 |
WCB CF8 CF8M 镍合金 Monel Duplex Steel |
|
阀杆 |
2Cr13 F304 F316 镍合金 Monel |
|
密封面 |
PTFE RPTFE PPL |
|
填料 |
PTFE |
二、主要零件材料:
|
适用介质 |
型号 |
阀体 |
球体、阀杆 |
手柄 |
密封圈 |
垫片、填料 |
|
水、蒸汽、油品 |
Q11F-16C、Q11F-25C |
A105、45 |
1Cr18/1Cr18Ni9Ti |
不 |
聚四氟乙烯PTFE增强聚四氟乙烯VUILUK PTFE对位聚苯PPL |
聚四氟乙烯PTFE对位聚苯PPL |
|
硝酸类 |
Q11F-16P、Q11F-25P |
SS304/1Cr18Ni19Ti |
SS304/1Cr18Ni9Ti |
|||
|
醋酸类 |
Q11F-16R、Q11F-25R |
SS316/Cr18Ni12Mo2Ti |
SS316/1Cr18Ni12Mo2Ti |
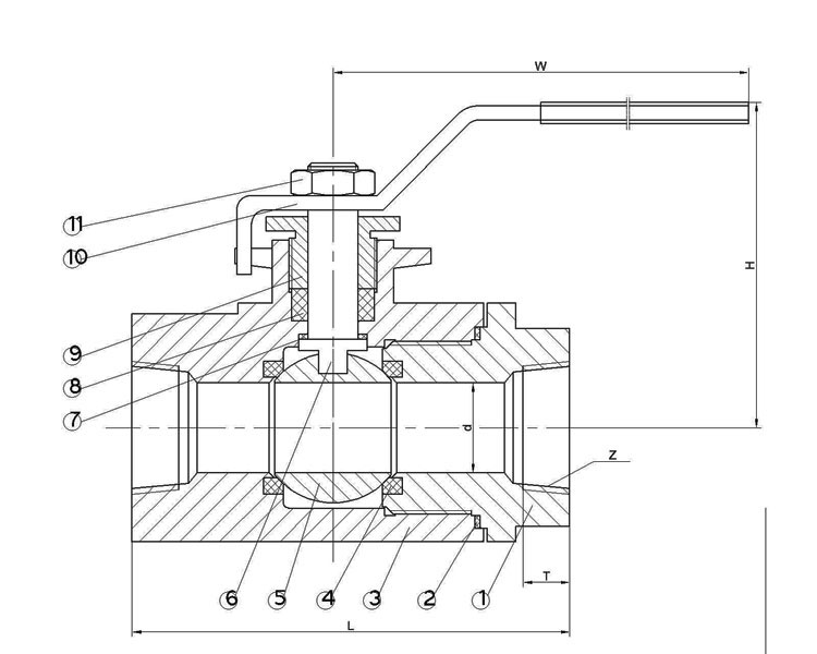
三、Q11F二片式内螺纹球阀主要尺寸:
|
公称通径 |
管螺纹 |
尺寸(mm) |
重量WT(g) |
|||||
|
d |
L |
W |
H |
E |
D |
D |
||
|
6 |
1/4″ |
8 |
60 |
110 |
56 |
11.5 |
30 |
320 |
|
10 |
3/8″ |
18 |
60 |
110 |
58 |
11.5 |
31 |
320 |
|
15 |
1/2″ |
10.5 |
60 |
110 |
58 |
14 |
32 |
350 |
|
20 |
3/4″ |
13 |
67.5 |
110 |
62 |
15 |
38 |
430 |
|
25 |
1″ |
17 |
73 |
110 |
68 |
15 |
45 |
570 |
|
32 |
1 1/4″ |
22 |
90 |
150 |
75 |
18 |
53.4 |
1000 |
|
40 |
1 1/2″ |
25 |
97.5 |
150 |
83 |
19 |
63 |
1550 |
|
50 |
2″ |
32 |
112 |
150 |
90 |
19 |
73 |
2170 |
|
65 |
2 1/2″ |
40 |
132 |
180 |
95 |
21 |
92 |
3625 |
|
80 |
3″ |
50 |
156 |
220 |
100 |
27 |
109 |
5800 |
|
100 |
4″ |
65 |
196 |
250 |
115 |
29 |
138 |
7200 |
螺纹标准:G·DIN2999 GB307-87、NPT.BSP
订货须知:
1.产品型号与名称 2.公称通径DN 3.额定流量系数KV 4.公称压力和压差 5.阀体和阀内组件材料 6.流量特性 7.适用温度 8.电源电压和控制信号 9.是否带附件