
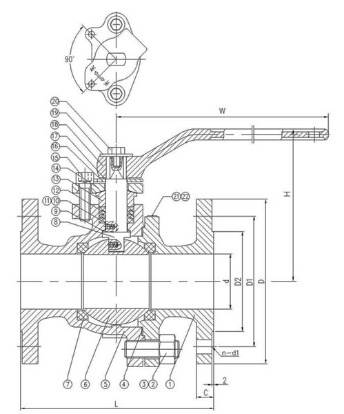
浮动球阀Q41F-16C产品用途
浮动球阀用于Class150~Class1500、PN16~PN100、JIS10K~JIS20K的各种管路上,用于截断或接通管路中的介质,选用不同的材质,可分别适用于水、蒸汽、油品、液化气、天然气、煤气、硝酸、醋酸、氧化性介质、尿素等多种介质
浮动球阀Q41F-16C产品特点
1、在各种阀门中,球阀的流动阻力最小,全径球阀打开时,球体通道、阀体通道和连接管径相等并成一直径,介质几乎可以毫无损失的流过
2、球阀旋转90°即可全关全开,启闭迅速。与相同规格的闸阀、截止阀比较、球阀体积小、重量轻,便于管道安装
浮动球阀Q41F-16C性能参数
|
型号 |
Q41F-16C |
Q41F-16P |
|
|
工作压力(MPa) |
1.6 |
||
|
适用温度(℃) |
≤180 |
||
|
适用介质 |
水、蒸汽、油品 |
弱腐蚀性介质 |
|
|
材料 |
阀体、阀盖 |
碳素钢铸钢 |
铬镍系不锈钢 |
|
球体、阀杆 |
铬/铬镍/铬镍钼系不锈钢 |
铬镍系不锈钢 |
|
|
密封圈 |
柔性石墨垫圈/316+柔性石墨垫圈 |
||
|
填料 |
聚四氟乙烯 |
||
PN1.6—PN4.0主要连接尺寸
|
公称通径 |
尺寸 |
||||||||||||||
|
PN1.6Mpa |
PN2.5Mpa |
PN4.0Mpa |
|||||||||||||
|
L |
D |
D1 |
b |
Z-ØD |
L |
D |
D1 |
b |
Z-ØD |
L |
D |
D1 |
b |
Z-ØD |
|
|
15 |
130 |
95 |
65 |
14 |
4-14 |
130 |
95 |
65 |
16 |
4-14 |
130 |
130 |
65 |
16 |
4-14 |
|
20 |
140 |
105 |
75 |
14 |
4-14 |
130 |
105 |
75 |
16 |
4-14 |
150 |
150 |
75 |
16 |
4-14 |
|
25 |
150 |
115 |
85 |
14 |
4-14 |
140 |
115 |
85 |
16 |
4-14 |
160 |
160 |
85 |
16 |
4-14 |
|
32 |
165 |
135 |
100 |
16 |
4-18 |
165 |
135 |
100 |
18 |
4-18 |
180 |
180 |
100 |
18 |
4-18 |
|
40 |
180 |
145 |
110 |
16 |
4-18 |
165 |
145 |
110 |
18 |
4-18 |
200 |
200 |
110 |
18 |
4-18 |
|
50 |
200 |
160 |
125 |
16 |
4-18 |
203 |
160 |
125 |
20 |
4-18 |
230 |
230 |
125 |
20 |
4-18 |
|
65 |
220 |
180 |
145 |
18 |
4-18 |
222 |
180 |
145 |
22 |
8-18 |
290 |
290 |
145 |
22 |
8-18 |
|
80 |
250 |
195 |
160 |
20 |
8-18 |
241 |
195 |
160 |
22 |
8-18 |
310 |
310 |
160 |
22 |
8-18 |
|
100 |
280 |
215 |
180 |
20 |
8-18 |
305 |
230 |
190 |
24 |
8-23 |
350 |
350 |
190 |
24 |
8-23 |
|
125 |
320 |
245 |
210 |
22 |
8-18 |
356 |
270 |
220 |
28 |
8-25 |
400 |
270 |
220 |
28 |
8-25 |
|
150 |
360 |
280 |
240 |
24 |
8-23 |
394 |
300 |
250 |
30 |
8-25 |
480 |
300 |
250 |
30 |
8-25 |
|
200 |
400 |
335 |
295 |
28 |
12-23 |
457 |
360 |
310 |
34 |
12-25 |
600 |
375 |
320 |
38 |
12-30 |